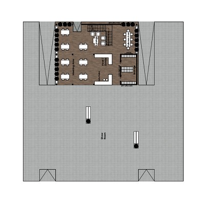
Der zweigeschossige Messestand präsentiert sich als moderne und offen gestaltete Kommunikations- und Präsentationsplattform für hochwertige Maschinenlösungen
in der Fleischverarbeitung. Die architektonische Struktur des Standes schafft klare Zonen für Produktpräsentation, Beratung und Geschäftsgespräche. Die weitläufge offene Fläche
vor dem Hauptbaukörper dient als zentrale Ausstellungszone für unsere Großgeräte. Begleitend dazu schaffen mehrere Sitzgruppen eine einladende Atmosphäre für spontane Gespräche
und kurze Beratungseinheiten im offenen Raum.
Die Architektur setzt auf Transparenz und Offenheit, während gezielte Möblierung dennoch diskrete Gesprächssituationen ermöglicht. Die obere Ebene ist über eine zentrale
Treppe zugänglich und bietet Raum für intensivere Gespräche und vertrauliche Verkaufsgespräche. Zusätzlich befndet sich hier ein Ausstellungsraum für kleinere Maschinen und
Speziallösungen. Das Standdesign orientiert sich an klaren Linien, einem modernen Materialmix und einem funktionalen Aufbau, der Besucherführung und Informationsvermittlung optimal kombiniert.